In the spirit of Thanksgiving, it seems a fitting occasion to say a big THANK YOU to all those family members and friends who have been out to the build site in the last month or so. Whether coming just to see what we've been up to or sweating it out with us on the … Continue reading A thank you to all the helpers and visitors!
Author: visioncreationadobe
Laying the first adobes
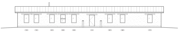
After over four months of foundation work, we were finally ready to lay our first adobes on Saturday, October 21st. The thrill of this milestone didn't fully strike me ahead of time. I had been primarily focused on making the final preparations - moving adobes up to the build site and finishing the door rough … Continue reading Laying the first adobes
Finishing the foundation and preparing to lay the first adobes
Another month has passed and we finally laid our first adobes yesterday morning! It took us a little over four and a half months to get to this point, as we broke ground on the foundation on June 1st of this year, so it really felt like a huge milestone. Before I discuss laying the … Continue reading Finishing the foundation and preparing to lay the first adobes
Finishing the gravel trench and constructing the concrete forms
We've been busy working since our last post! The gravel trench proved to be a time-consuming and laborious project, but hey, that's what building your own house is all about! The trench took precisely 75,340 lbs. of gravel to fill. Shovelful by shovelful we moved that entire amount from the pile to the trench. Installing … Continue reading Finishing the gravel trench and constructing the concrete forms
Gravel Trench Footing Construction
Earlier this week we started filling the trenches with gravel. A gravel trench foundation, also known as a rubble trench or french drain, is an alternative foundation that requires an engineer's seal to be approved in the state of New Mexico. The trenches are lined with filter fabric to reduce the amount of mud that … Continue reading Gravel Trench Footing Construction
A month of trench work
Rainbows, trenches, etc.
Working in the trenches
Can you dig it?
Getting the Buildsite Ready
Our permit drawings were approved!
Submitting the plans
My trip to Las Cruces to submit the plans...
Working on the permit drawings
Lots of work went into the designing and planning of our adobe home...